|


|
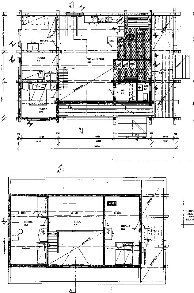
MÄNTYNIEMI
Pyöröhirsimökki
(140
m2) punakylkisten petäjien keskellä kirkasvetisen
Kolkonjärven rantatöyräällä. Valmistunut v. 2000.
Ympärivuotisessa käytössä. Tilaa riittää isollekin
sakille.
Vuodepaikkoja
10
+ 2, makuuhuoneita 5 kpl.
Iso tupakeittiö, 2-metrinen pirtinpöytä, sauna,
pesuhuone, wc.
Täyskorkeassa yläkerrassa aulatila. Reilut
kuistit.
Varustus:
Astiasto
14 hengelle. Sähköliesi, mikrouuni,
astianpesukone, kahvinkeitin, leivänpaahdin,
jenkkijääkaappi, sähkövatkain, vedenkeitin, tv,
video, cd-soitin, hiustenkuivain ja
pyykinpesukone. Tulikivitakka, leivinuuni.
|